Radebeul:
Einmaliges Angebot – Wohnen auf einer Ebene
Objekt-Nr.: MBM142024

Ansicht


Terrasse

Pool

Grundstück



Garage










Preis:
420.000 €
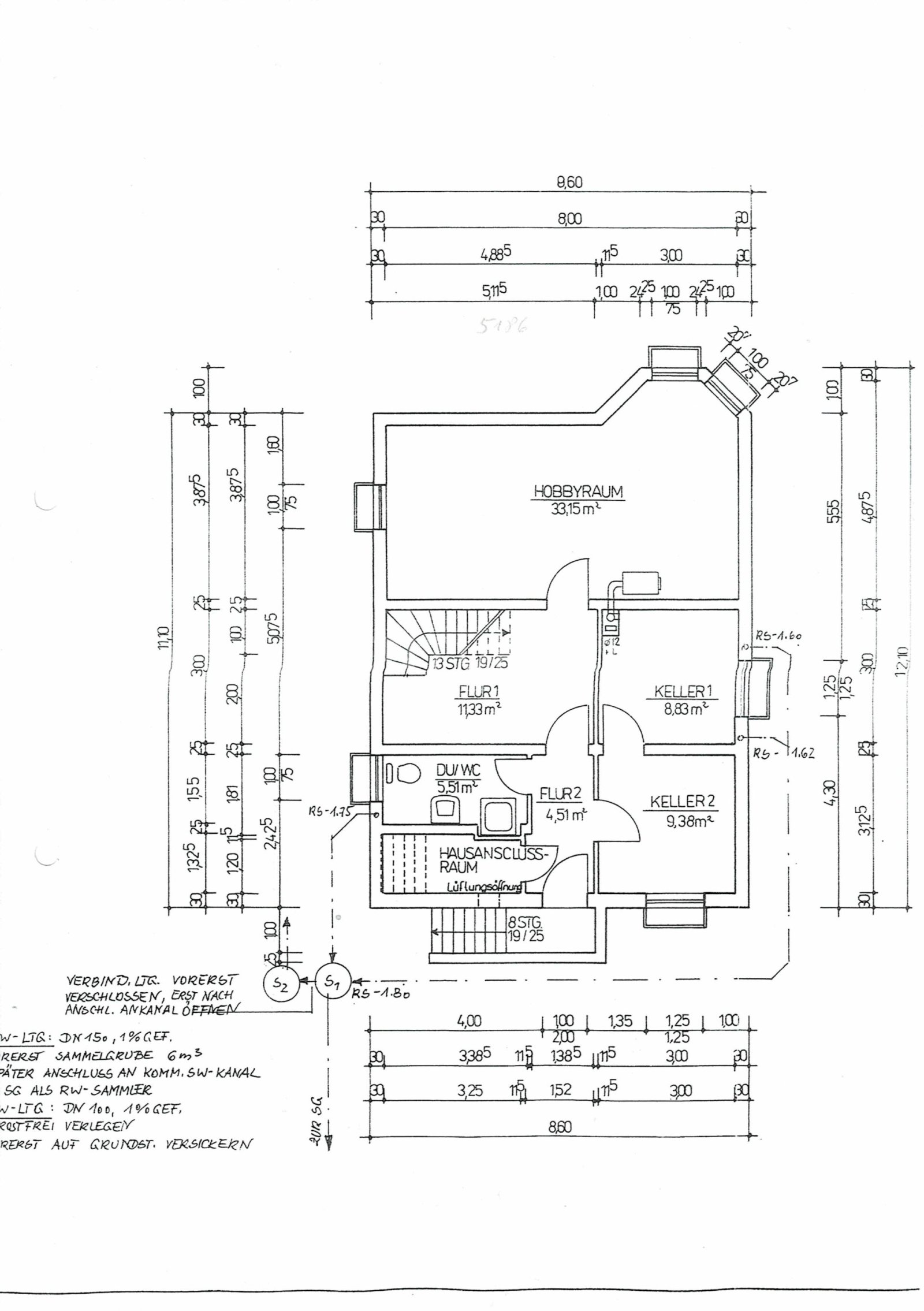
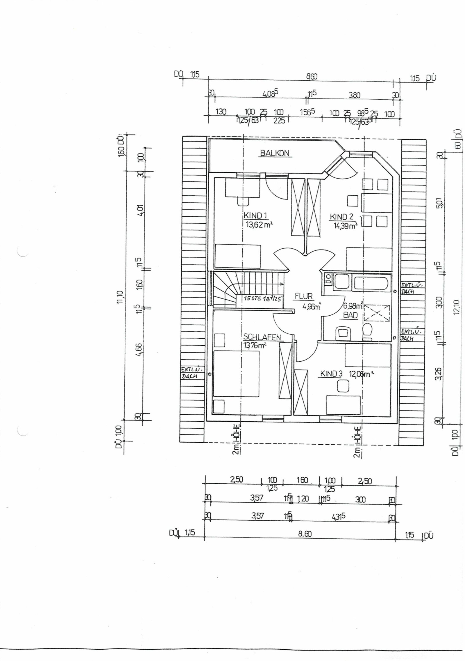
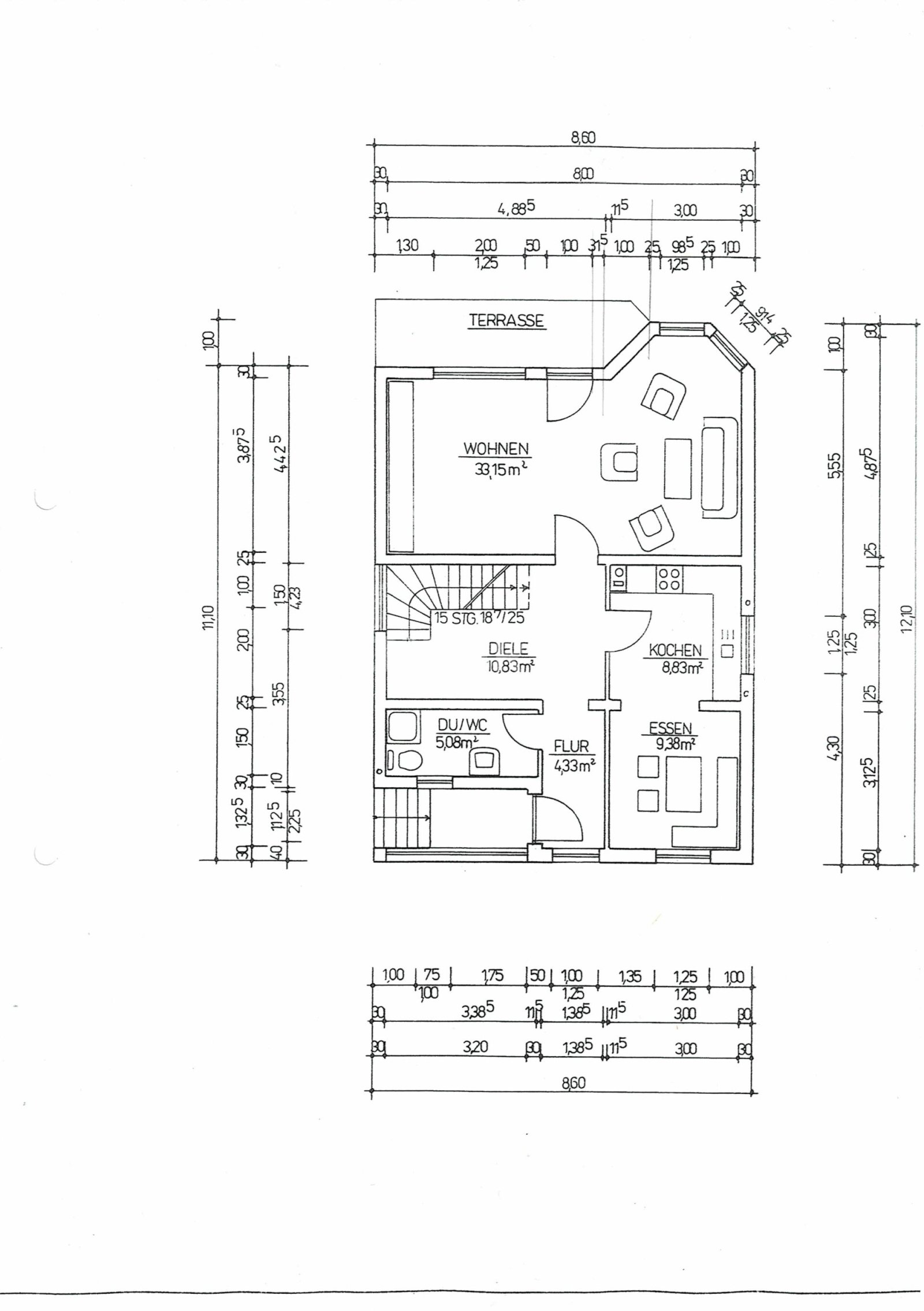
Wohnfläche ca.:
95 m²
Grundstück ca.:
603 m²
Zimmeranzahl:
4
Nutzen Sie dieses einmalige Angebot und lassen Sie sich verzaubern von dieser schönen Immobilie, gelegen in einer ruhigen Lage und doch zentrumsnah. Dieser wunderschöne Bungalow bietet Ihnen das perfekte Zuhause auf einer Ebene, ideal für Familien, Paare oder Senioren, die den Komfort eines ebenerdigen Wohnens schätzen.
Haustyp: Einfamilienhaus
Etagenanzahl: 1
Provisionspflichtig: nein
Küche: Einbauküche
Bad: Dusche, Wanne
Anzahl Schlafzimmer: 2
Anzahl Badezimmer: 1
Terrasse: 1
Barrierefrei: ja
Seniorengerecht: ja
Gäste-WC: ja
Nichtraucher: ja
Kamin: ja
Wintergarten: ja
Keller: teil unterkellert
Anzahl der Parkflächen: 2 x Außenstellplatz; 1 x Garage
Möbliert: Teilmöbliert
Qualität der Ausstattung: normal
Baujahr: 1960
Zustand: gepflegt
Energieklasse: H
Befeuerungsart: Öl
Energieausweistyp: Bedarfsausweis - gültig vom 09.07.2024 bis 08.07.2034
Energieeffizienz-Klasse: H
Baujahr laut Energieausweis: 1995
Provisionsfrei
Die von uns gemachten Informationen beruhen auf Angaben des Verkäufers bzw. der Verkäuferin. Für die Richtigkeit und Vollständigkeit der Angaben kann keine Gewähr bzw. Haftung übernommen werden. Ein Zwischenverkauf und Irrtümer sind vorbehalten. Wir bitten um Ihr Verständnis, dass aus Diskretionsgründen kein weiteres Bildmaterial veröffentlicht wird. Um sich einen genaueren Eindruck von der Immobilie verschaffen zu können, laden wir Sie gern zu einem persönlichen Besichtigungstermin ein. Rufen Sie uns an oder senden Sie uns eine E-Mail.
Wir weisen auf unsere Allgemeinen Geschäftsbedingungen hin. Durch weitere Inanspruchnahme unserer Leistungen erklären Sie die Kenntnis und Ihr Einverständnis. Keine Sorge: durch die Anfrage der Immobilie, Zusendung des Exposé, Durchführung von Besichtigungen oder Beibringen von Unterlagen entsteht kein Maklervertrag mit Ihnen. Wir sind alleiniger Interessenvertreter des Eigentümers.
Das könnte Ihnen auch gefallen

Firma MBM IMMOBILIEN Sven Mager
Blasewitzer Straße41
01307 Dresden
Telefon: +49 35795 287093
Büro: +49 351 4504193
Mobil: +49 174 3238746










































